Na kontaktoni
-
Contact us
Please quote property reference
Detajet e Pronës
-
Lloji i Pronës Apartamente
-
Çmimi 285,100€
-
Sip Neto 150 m²
-
Sip Bruto 168.66 m²
-
Dhomat 2
-
Tualetet 2
-
Viti Ndërtimit NE NDERTIM
-
Statusi i Pronës Shitje
Përshkrimi
Rezidenca By Long Hill ndodhet në zonën më të kërkuar të Tiranës, vetëm 1 minutë larg nga TEG dhe 5 minuta nga qendra e qytetit.
Ky kompleks banimi ofron komoditet, qetësi dhe një stil jetese pranë natyrës, me një park të gjerë, ambiente të përbashkëta dhe arkitekturë bashkëkohore që e bëjnë një nga projektet më cilësore në treg.
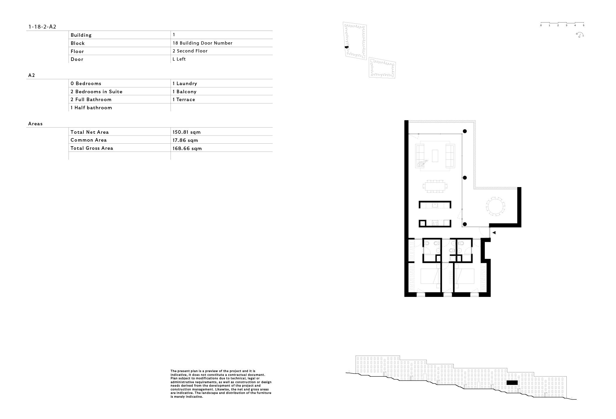
Apartamenti ndodhet në katin 2 dhe përfshin:
•Tipologji: 2 dhoma gjumi
•2 tualete
•1 lavanderi
•Sipërfaqe neto: 150.81 m²
•Sipërfaqe të përbashkëta: 17.86 m²
•Sipërfaqe bruto: 168.67 m²
Ofrohet mundesi pagese me keste.
Vecantite e Rezidences:
– 0% kosto për energjinë elektrike
Inkorporimi i paneleve diellore në “By Long Hill Residence” garanton 0% kosto për energjinë elektrike, duke ofruar një zgjidhje të qëndrueshme dhe inovative. Kjo rezidencë bën diferencën me një qasje ekologjike, pa ndikim negativ në mjedis. Jo thjesht një vendbanim, por një hap drejt një të ardhmeje të qëndrueshme.
– Fasada e jashtme ka një personalitet të veçantë. Duke qëndruar e pastër dhe minimaliste frymëzon një model te ri banimi dhe një stil të ri jetese.
– Ekipi i mirëmbajtjes siguron pastërti dhe funksionalitet në çdo hapësirë, ndërsa masat e avancuara të sigurisë dhe monitorimi i vazhdueshëm garantojnë mbrojtje të plotë. Me recepsion 24/7, çdo nevojë apo kërkesë e banorëve merr përgjigje të menjëhershme, duke ofruar një përvojë jetese të rehatshme dhe të sigurt.
Për më shumë informacion ose për të planifikuar një vizitë, ju lutem mos hezitoni të më kontaktoni.
Apartament 3+1+2 + Garazh dhe Depo per Shitje te Liqeni i Thate!!
- 365,000€
- Krevatet: 3
- Baths: 2
- 126 m²
SHESIM APARTAMENT 1+1 TEK MAJESTIC RESIDENCE, PASKUQAN
- 74,900€
- Krevat: 1
- Bath: 1
- 58.58 m²
APARTAMENT 1+1 PER SHITJE NE PASKUQAN
- 61,500€
- Krevat: 1
- Bath: 1
- 59.6 m²
JEPET ME QIRA APARTAMENT 2+1 ASTIR VILA L
- 470€
- Krevatet: 2
- Bath: 1
- 60 m²







